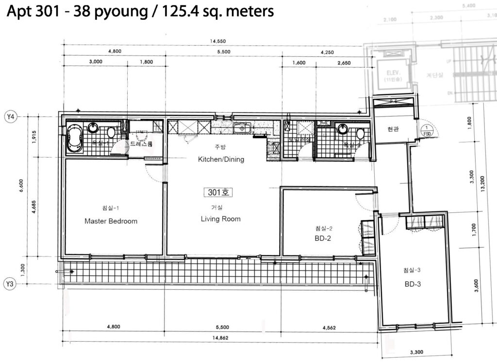
This apartment is approximately 125.4 square meters or 38 평 (pyeong) in net living space, not including the 17m² balcony. It features three large bedrooms and two bathrooms, a spacious living room and dining area, great views and ample natural light.
Note that these pictures are almost ten years old and do not reflect improvements in furnishings.




Kitchen features heavy granite countertop and modern cabinets with slam-proof doors and drawers. 

Entry closet open view. Adjustable Shelving may be removed to accomodate for storage. 






Second Bathroom Glass shower stall with Rain Shower, modern fixtures, 
Laundry/Boiler room contains combo washer/dryer. 

Master Bath with tub, modern fixtures, American Standard sink and toilet, built-in medicine cabinet
